Product Description
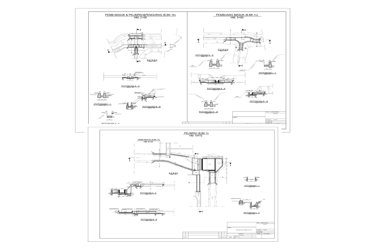
Contoh gambar desain bangunan pelimpah dan pembuang masuk atau affour, ini saya buat ketika mengerjakan proyek Perencanaan Irigasi Teknis. Kedua bangunan tersebut merupakan bangunan pelengkap diantara bangunan-bangunan air lainnya. Gambar desain ini saya buat pada program Autocad 2010.
Contoh gambar desain bangunan ini di harapkan dapat menjadi bahan referensi ataupun acuan ketika teman-teman pada saat ini sedang mengerjakan proyek perencanaan irigasi ataupun membuat tugas mata kuliah irigasi, khususnya membuat desain gambar bangunan air. Tentunya tidak akan sama dengan bentuk dan dimensinya, dikarenakan sket dari hasil inventory lapangan pastinya berbeda.
Desain gambar bangunan ini berupa file dwg, jadi bisa teman-teman buka di program Autocad dan juga bisa di edit sesuai kebutuhan / hasil sket di lapangan.
Semoga bermanfaat.
Product Advantages
-
Contoh gambar desain bangunan pelimpah dan pembuang masuk (affour) ini dapat dijadikan sebagai bahan referensi dalam melaksanakan proyek perencanaan irigasi teknis, khususnya dalam membuat gambar-gambar desain untuk bangunan airnya (bangunan pelengkap).
Who Should Buy This Product ?
-
dosen, mahasiswa, pelajar, dan karyawan perusahaan Konsultan Perencana dan Kontraktor
Requirements
-
Anda harus bisa mengoperasikan komputer atau laptop, dan bisa menjalankan program Autocad 2008, 2010, dst.
No reviews yet
Write Review
Please purchase this product to be able to write review